產品型號、名稱
用途及適用范圍
1、用于壓榨菠蘿、蘋果、梨等水果。
2、用于壓榨桑椹、葡萄、桔子、橙等漿果。
3、用于壓榨西紅柿、生姜、芹菜等蔬菜。
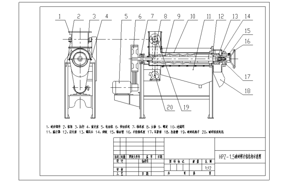
設備結構、工作原理(見第3頁附圖)
1、榨汁機部件
結構:
由前支座、進料斗、螺旋、過濾網、盛汁器、后支座、出渣槽等零件組成,螺旋主軸左端支承于滾動軸承座內,右端支承于手輪軸承座中,電動機通過一對三角皮帶輪驅動螺旋進行工作。
工作原理:
本設備的主要構件是螺旋,螺旋沿著料渣出口方向底徑逐漸加大而螺距逐漸減小,當物料被螺旋推進時,因螺旋腔體積的縮小,形成對物料的壓榨。
螺旋主軸的轉動方向從進料斗向渣槽方向看去,為順針時方向。原料加入進料斗中,在螺旋的推進下受壓,其壓榨的汁液通過過濾網流入底部的盛汁器,而廢料則通過螺旋及調壓頭的錐形部分之間形成的空隙排出,調壓頭沿軸向的移動可調整空隙的大小。用手順時針(從設備的出渣槽向進料斗看)轉運手輪軸承座時,調壓頭向左,空隙即縮小,反之則空隙變大。改變空隙的大小,即調整出渣的阻力,即可改變出汁率,但如果空隙過小,在強力擠壓下,部分渣的顆粒會和汁一起通過過濾網被擠出,盡管出汁增加,但汁的質量相對下降,空隙的大小應視用戶具體工藝要求而定。
2、破碎機部件
該機主要由:進料斗、破碎部件、支架、出料斗、傳動部件等組成,接觸物料部件由不銹鋼制造。
工作原理:飛刀繞自身軸線在固定不動的底刀間隙內旋轉,從而使果蔬破碎,轉子上有四組飛刀,底刀為一組,視果蔬種類不同,出料斗有斗式和管式兩種型式。在進料斗上部加上緩沖裝置,可得到粒度更細的物料。
操作及維護
1、操作
當一次啟動榨汁機時,應調整壓頭使環狀間隙達到頂,其后間隙逐漸減小,達到工藝要求后,再用制動器固定手輪軸承座位置。
啟動破碎機前應檢查機器內有無異物,控制進料數量。
2、維護
在每班之后必須用水和刷子洗刷過濾網。如果過濾含纖維較多之果汁,須視生產情況,間增一次洗網,在壓榨完畢之后用熱水清洗全部機器。
在各潤滑點,每星期加注潤滑油一次。
1、果汁處理量:1.5噸/小時。
2、壓榨螺旋直徑:Φ175毫米。破碎機轉子直徑Φ190毫米
3、螺旋轉速:400轉/分。破碎機轉速310轉/分
4、過濾網孔徑:0.6毫米。
5、榨汁機電機功率:4千瓦。破碎機功率1.5千瓦
6、設備重量:約300公斤。
7、外形尺寸:1860×450×1340毫米。
產品廣泛應用于超市、賓館、餐飲、休閑、娛樂、醫院、教育等場所。

當前位置:首頁 > 蔬菜處理專題 > 茄果類 > 番茄榨汁機




